
Studenti 2.B navrhli svoje vysněné bydlení
Každá jazyková lekce by měla být zakončena zajímavou aktivitou, ve které si studenti vyzkouší, co nového se v lekci naučili. Studenti 2.B uzavřeli lekci o bydlení internetovým projektem, ve kterém měli navrhnout svůj vysněný dům. Tento virtuální plán pak měli představit svým spolužákům a společně diskutovat o výhodách či nevýhodách navrženého domu. Popřípadě navrhnout vylepšená řešení dispozice domu.
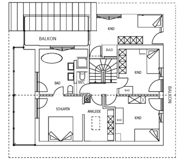
Pro navrhování domu studenti použili následující internetovou stránku www.planungswelten.de/raumplaner.html.
Pokud máte chuť, můžete se podobně jako studenti 2.B, pokusit navrhnout svoje vysněné místo k bydlení. Viel Spaß beim kreativen Denken!
Mgr. Blanka Černá
Ukázky projektu: Traumhaus von Vendula Kabrdová

Traumhaus von Adéla Hedvičáková

Traumhaus von Zdeňka Sedláková

